要用搬送机械手,就选JEL



系统

SORTER SYSTEM (4个FOUP的inline类型 600片/h)

 (4个FOUP的inline类型 600片/h)

使用环境和规格/规格


产品概要

产品型号SORTER SYSTEM
使用环境洁净间内的大气环境
晶圆尺寸300mm
被搬运物硅片晶圆
关于产品规格,欢迎垂询
Throughput600片/h
  • 视频展示产品为 SORTER SYSTEM (4个FOUP的inline类型 600片/h).

产品特点

  • 符合SEMI Standard标准(E15.1-0600, E57-0600, E62-0999, E63-0600, E64-0600)
  • 高吞吐量(600片/h)
  • 通过对手臂活动范围的规划,能够顺畅而且高速地传输晶圆
  • 配备的ID Reader可以读取晶圆的ID信息(正反面对应为选配件)

标准规格

测试机型:4个FOUP的inline类型 600片/h(搬运机械手使用2台水平多关节型)
对应片盒 300mm FOUP (25片)   SEMI E47.1,E62标准品
被搬运物 300mm 硅片   (厚度:775µm)
Throughput 600 片/h
洁净度 ISO Class 2 (FFU使用)
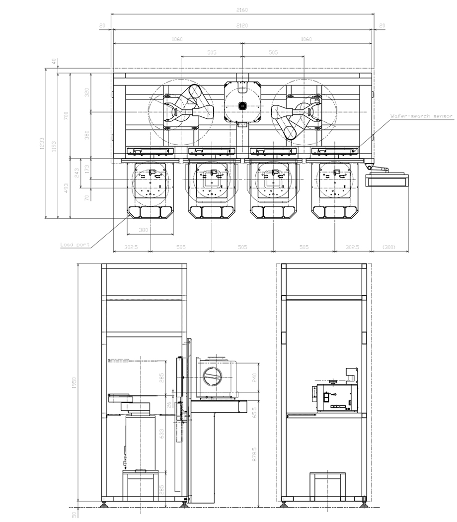
外形尺寸 W 1233mm x D 2160mm x H 2000mm
质量 大约 800kg
厂务 电源:単相AC200V±15% 15A
干燥空气:0.7MPa~0.4MPa
真空:优于-60kPa
外観図
SORTER SYSTEM (600/h)


产品一览


指南
  • ...大气
  • ...真空
  • ...防水
  • ...单臂
  • ...双臂
  • ...薄片晶圆
  • ...CE標註
  • ...JEL标准
  • ...KCs標註